Cookie Policy:
This site uses cookies to store information on your computer. Read more
This site uses cookies to store information on your computer. Read more
| Type | Price | Units (avail.) |
|---|---|---|
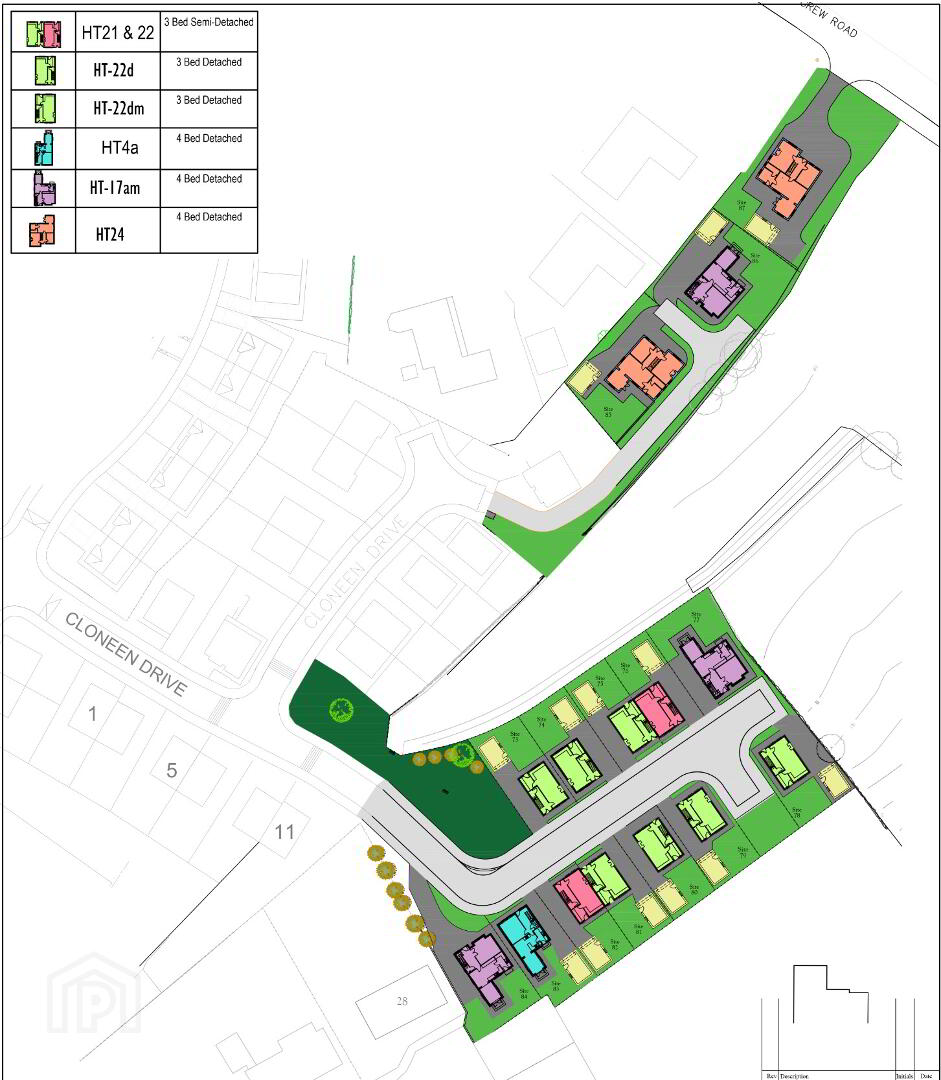
| House Type 22D 3 Bed Detached House | Price £247,500 | 5 (1) |
| House Type 22 3 Bed Semi-detached House | £232,500 | 2 (2) |
| House Type 21 3 Bed Semi-detached House | Price £234,500 | 2 (1) |
| House Type 24 4 Bed Detached House | Price £409,500 | 1 (1) |
| House Type 17a 4 Bed Detached House | £282,500 | 3 (0) |
| House Type 23a 4 Bed Semi-detached House | SOLD | 2 (0) |
Last phase release of the exclusive Cloneen development: P & K McKaigue's flagship residental housing scheme in Maghera.
The established site offers a quiet country setting within walking distanceof Maghera, one of N.Ireland's most central towns.
Full turnkey modern package with high energy efficiency.
Choose your new home from a selection of Detached and Semi Detached house types.